- Erdre Porterie
- Logement, 2017–2022
-
-
Le projet, situé au sein de la ZAC Erdre Porterie, comprend 34 logements répartis en deux bâtiments de logements collectifs. Séparés par un jardin, ils occupent une parcelle traversante du quartier des Vergers du Launay.
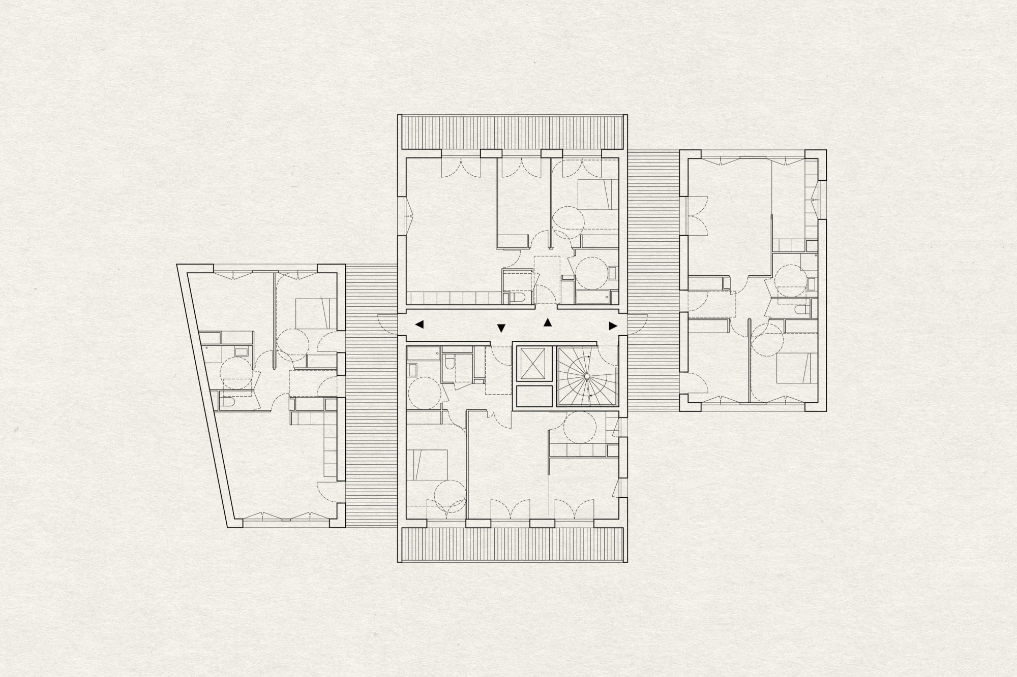
La disposition des logements s’organise autour d’un niveau courant organisé suivant le même principe dans chacun des bâtiments : le noyau vertical donne accès à deux logements en double orientation et à des failles traversantes aménagées en jardins d’hiver. Celles-ci constituent les séquences d’entrée des logements traversants qui occupent les extrémités des volumes. À l’abri des nuisances sonores de la rue, ces jardins décuplent la surface du logement et génèrent un espace extérieur préservé qui s’ouvrent sur de grands balcons.
L’entrée - un hall ouvrant sur la rue - est une séquence sur pilotis, avec une hauteur dégagée sur deux niveaux, occupée d’un banc et d’un arbre. Dans cette zone de respiration sont installés les racks à vélo.
L’ensemble du projet est traité avec un seul et même matériau : un béton brut autoplaçant coulé en place. D’un gris clair, il accroche la lumière et laisse transparaitre le calepinage des banches de coffrage, mettant ainsi en scène les principes structurels et constructifs du bâtiment.-
- → Infos
-
Lieu : Verger du Launay VL5b, ZAC Erdre Porterie, Nantes (44)
Programme : Construction de 34 logements collectifs
Maîtrise d’ouvrage : Marignan Immo
Surface de plancher : 2 777 m²
Surface SHAB : 2 648 m²
Budget : 3 990 000€ HT
Date : 2017-2022
Livré en avril 2022
Mission : Complète + BIM + OPC
Performances et labels Energétiques :
BBC Effinergie / NF Habitat



















